Zusammenarbeit

größe

350ft2

ton

title 1 title 2

materialien

title 1 title 2
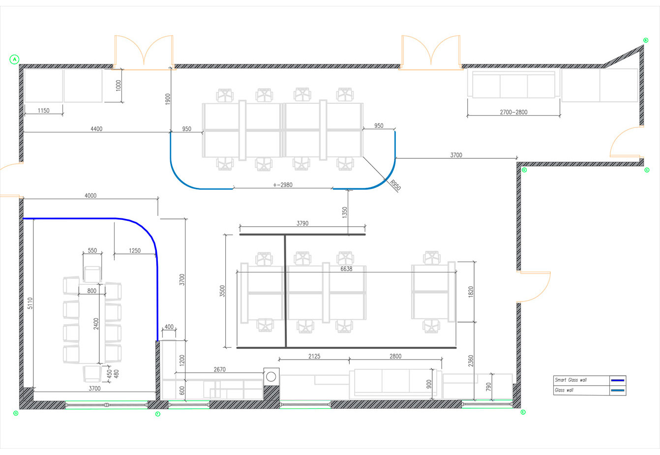
Das Büro vereint bei Bedarf Küche, Essbereich und Präsentationsfläche und schafft so einen zentralen Punkt für die einfache tägliche Kommunikation zwischen den Teams. Der Arbeitsbereich wurde in Abteilungen unterteilt, die jeweils über unterschiedliche Betriebsparameter, zentrale Ausstattung und flexible Arbeitsbereiche für verschiedene Grade an Teamarbeit und Konzentration verfügen.

Raumzonierung

Die weißen Trennwände zwischen den Tischen bestehen aus perforierten Metallplatten, die sowohl im Innen- als auch im Außendesign verwendet werden und sich harmonisch mit Materialien wie Holz, Naturstein, Ziegel und Glas kombinieren lassen. Sie werden aus Aluminium, Bronze, Edelstahl oder Titan gefertigt und sind äußerst vielseitig einsetzbar. Ein großer Vorteil ist ihr geringes Gewicht, das sie besonders für Verkleidungen attraktiv macht. Zudem sind diese Trennwände leicht zu versetzen, wodurch die Raumaufteilung flexibel und individuell angepasst werden kann.
Eisglas spielt eine sehr wichtige Rolle bei der Raumzonierung von Büros. Es lässt Licht in den ausgewählten Bereich eindringen, trennt jedoch gleichzeitig diesen Bereich vom Rest des Raums. Das Ergebnis dieser Technik ist ein klar abgegrenzter Raum für die Teamarbeit.

MicroOffices

Dieser Raum umfasst blaue Mini-Büros. Die als MicroOffices bezeichneten, freistehenden Einheiten können ohne strukturelle Änderungen am bestehenden Büro installiert werden. Jedes der MicroOffices besteht aus Schichten von Massivholz und akustischen Materialien sowie schalldämmendem Glas und einer akustisch versiegelten Tür mit Magnetverschluss, um sicherzustellen, dass der Raum vollständig vor Außengeräuschen isoliert ist. Die Räume verfügen außerdem über ein Belüftungssystem, das leise frische Luft in die Arbeitsbereiche liefert, während die gepolsterten Paneele auch die Akustik des Außenraums verbessern. Hier können Sie Anrufe tätigen oder Online-Meetings abhalten. Dies ist ein wesentlicher Bestandteil eines funktionalen Interieurs für große Arbeitsbereiche.
Elektrisch schaltbare Glaspartitionen (Smart Glass) bieten Anpassungsfähigkeit und Stil für Innenräume. Schaltbares Glas kann einen Raum mühelos von einem offenen und gemeinsamen Bereich in einen privaten Raum verwandeln, indem es bei Bedarf undurchsichtig wird.
Die Sanitärräume für Büroflächen umfassen Toiletten für Menschen mit Behinderungen sowie Duschen.